The south facade of Laois Shopping Centre owned by Lindat Ltd.
Laois planners have approved another big change for Laois Shopping Centre in Portlaoise.
The centre which has Penneys and Tesco as anchor tenants, is in the middle of a multiple growth stage.
Penneys is undergoing work to double in size, adding a possible 90 new jobs.
The shopping centre recently welcomed a new food court too, with O'Brien's, AbraKebra and the Bagel Factory.
Owners Lindat are also planning a huge change to the south entrance that faces Kyle Shopping Centre and James Fintan Lalor Avenue. They are getting rid of the stairs to the first floor entrance and changing to a ground floor entrance with an escalator for customers. A planning application is under consideration, with a decision due shortly.
In the meantime, another big change has been granted planning approval.
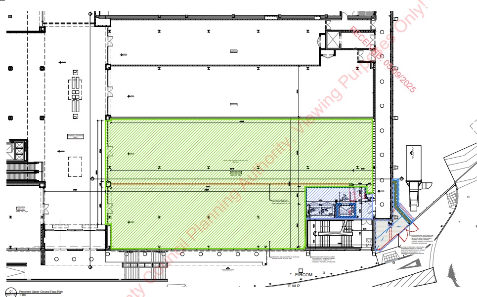
Two shop units will be amalgamated into one, facing the Tesco entrance.

Drawing of the two units to be amalgamated at Laois Shopping Centre.
Units 35 and 36 will be unified. One is vacant since it was built during an expansion of the centre, the other currently hosts a children's play centre business.
Lindat state that both are accessed from within the internal mall, and will form a single larger retail unit with a combined floor area of 781 sq.m. No external works are proposed to the exterior of the building.
Subscribe or register today to discover more from DonegalLive.ie
Buy the e-paper of the Donegal Democrat, Donegal People's Press, Donegal Post and Inish Times here for instant access to Donegal's premier news titles.
Keep up with the latest news from Donegal with our daily newsletter featuring the most important stories of the day delivered to your inbox every evening at 5pm.