Laois County Council offices.
Eleven new homes are to be built on a small council owned field in Portarlington town in Laois.
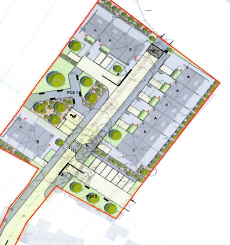
Part 8 planning approval was granted by councillors at the November meeting of Laois County Council, to build the new housing development on a 0.41 hectare greenfield site in what is the second biggest town in Laois after Portlaoise.
The plan had met with some local objection however, by a nearby resident who wanted part of it kept as green space.
The Lough Villas resident said that with his neighbour he had spent almost 20 years maintaining the site, making a "positive impact on the local environment and community". However the council planners replied that the site was to provide "much needed social housing in the locality".
The objector also asked for the area designated for parking spaces to be landscaped, but the council said parking was for use of residents and "would not be reduced".
The development is on the north side of Bracklone Street, behind existing homes and businesses. Access is inside the town limits off Bracklone Street through an existing opening between terraced homes.

Laois County Council describe it as "disused and overgrown".
The scheme will provide 11 housing units, with public and private open space, footpaths and streetlights, bin storage, car parking and bicycle parking.
The houses will all be single storey, either one or two bedroom, designed to be "adaptable, inclusive and safe for a wide range of users".
Read next: PICTURES: Winners from the Laois GAA Awards night
The council say they will consult with the residents of Lough Villa on a 1.8 boundary wall between both developments "to protect the amenity of the Lough Villa terrace" and "where feasible provide rear access gates to their properties".
Cllr Paschal McEvoy proposed the approval of Part 8 planning permission, seconded by Cllr Vivienne Phelan.
Subscribe or register today to discover more from DonegalLive.ie
Buy the e-paper of the Donegal Democrat, Donegal People's Press, Donegal Post and Inish Times here for instant access to Donegal's premier news titles.
Keep up with the latest news from Donegal with our daily newsletter featuring the most important stories of the day delivered to your inbox every evening at 5pm.