Pictures: Heritage Village
Irelands first luxury retirement village has opened in Laois, next to The Heritage Killenard.
The brand new Heritage Village is offering high end retirement living in Killenard.
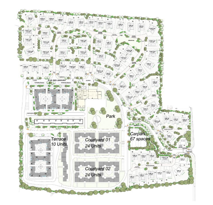
There are now 47 completed properties on the site, with construction expected to be completed in May of 2026.
Pictured: Modern living at the Heritage Village
Starting from €325,000, two types of two-bedroom homes are available for purchase: detached homes and courtyard homes. Heritage Village offers 24/7 support available for residents, with plenty of amenities within walking distance.
“Heritage Village is reimagining what later living can be in Ireland. The environment we are creating offers the freedom of independent living, the reassurance of support when required and the warmth of a vibrant, connected community," Mr Maurice Harrington, Heritage Village Sales Manager explained.
"Heritage Village is a positive, forward-looking choice for those who want to stay active, connected and in control of how they live. It’s a modern, purpose-built community designed to support independent, active and fulfilling lifestyles for the over 55s," he said.

Pictured: A2 rated homes with accessibility in mind at the new Heritage Village
Management explained that the aim of the village is 'to provide residents with the opportunity to stay active and live life their way'.
"At Heritage Village you decide how you spend your time," management said.
"Join community activities or enjoy peaceful privacy. Take a class in the gym or walk the trail. Meet neighbours in the bistro or relax at home. Your lifestyle is entirely your own – with the freedom and flexibility to shape each day as you choose."
Each and every home at Heritage Village has been created for comfort, ease and long-term living.
Pictured: Comfortable living offered at Ireland's first luxury retirement village
'Light-filled, energy-efficient and finished to exceptional standards, the bespoke homes are designed to make everyday life simpler and more enjoyable, creating a place where residents can live confidently and comfortably, on their own terms,' the homes are advertised.
The layout of these homes is designed to foster a community environment, with a community hub building and a park central to the housing development.
The community hub features a bistro and bar, a library, a cinema room, a private function room, an exercise room, a gym, a pickleball court, consulting rooms for wellbeing appointments, a reception and administrative offices.
Pictured: The layout of the new homes
Along with these services, residents have access to the hotel's leisure pool and fitness facilities, the spa and thermal suite, and Ireland’s only Seve Ballesteros-designed championship course.
These neighbouring facilities offer even more ways to stay active, social and engaged, just a short walk from home.
"These shared spaces make it easy to feel part of a warm, independent community while always maintaining your own privacy and pace," staff said.
The village hopes to blend 'the tranquility of countryside living' with easy access to local services, recreation and transport links.
Pictured: Modern and accessible bathrooms in the Heritage Village homes
"Heritage Village enjoys direct access to a beautiful 5km walking track that winds through the surrounding landscape and is within walking distance to local amenities, including The Heritage Hotel & Spa and Heritage Golf Resort," representatives highlighted.
The village is located just four kilometres from Portarlington train station, providing access to Dublin, Cork, Limerick and Galway.
"Take the next step towards comfort, community and peace of mind," staff finished.
Subscribe or register today to discover more from DonegalLive.ie
Buy the e-paper of the Donegal Democrat, Donegal People's Press, Donegal Post and Inish Times here for instant access to Donegal's premier news titles.
Keep up with the latest news from Donegal with our daily newsletter featuring the most important stories of the day delivered to your inbox every evening at 5pm.