Search

31 Jan 2026

Laois shop to be demolished to make way for new housing development

An Coimisiún Pleanála gives go-ahead for 26 new housing units in Abbeyleix

Permission granted for new housing development on site of Laois business

Permission has been granted for a new housing development in Abbeyleix on the site of a hardware and furniture shop.

The development consists of 26 residential dwelling units comprising of apartments and houses on the site of Dunnes Hardware and Antiques on New Row, Abbeyleix.

Laois County Council had previously granted permission for the development, and an appeal on the Council's decision was lodged by Ethel Burke to An Coimisiún Pleanála.

 

Pictured: Plans submitted to Laois County Council on the proposed development in 2024

In her original submission to the Council, Ms Burke raised concerns related to whether the use of materials was in keeping with the Architectural Conservation Area (ACA) of Abbeyleix. 

Ms Burke also called for the delivery of a more balanced housing mix and for the applicant to address traffic safety risks more rigorously.

An Coimisiún Pleanála have reviewed Ms Burke's appeal and granted permission for the development to go ahead, subject to 17 conditions.

The planning authority has ruled that the proposed development would be acceptable, would not seriously injure the residential or visual amenities of the area or of property in the vicinity, would not negatively impact on the built heritage of Abbeyleix, and would be acceptable in terms of traffic safety.

Conditions of the development include the omitting of a proposed brick finish to the front of units one and two, the dormer houses.

The dormer houses must be facing New Row, in the interest of the number of dwellings approved, and for visual purposes.

Prior to the beginning of works and the housing of people in this development, a final Road Safety Audit must be carried out.

The development cannot begin until drainage arrangements are agreed to with the Council, and asbestos found on the site of the development is removed. Developers must submit a detailed Construction Environmental Management Plan (CEMP) and a Resource Waste Management Plan (RWMP).

 

Pictured: plans of dormer bungalows originally submitted to Laois County Council by developers

A detailed construction traffic management plan shall be submitted to, and agreed in writing with, the planning authority, and developers must enter into water and wastewater connection agreements with Uisce Eireann.

The naming and numbering of the houses and apartments must be in line with local historical or topographical features, unless otherwise accepted by the planning authority. 

No advertisements/marketing signage relating to the names of the development shall be erected until the developer has obtained the planning authority’s written agreement to the proposed names.

The developers must agree with the local authority that these units are for the purchasing of individual buyers or eligible housing applicants, as per housing regulations.

An Coimisiún Pleanála have ordered that details of the materials, colours and textures of all the external finishes to the proposed dwellings shall be submitted to, and agreed in writing with, the planning authority prior to commencement of development.

  

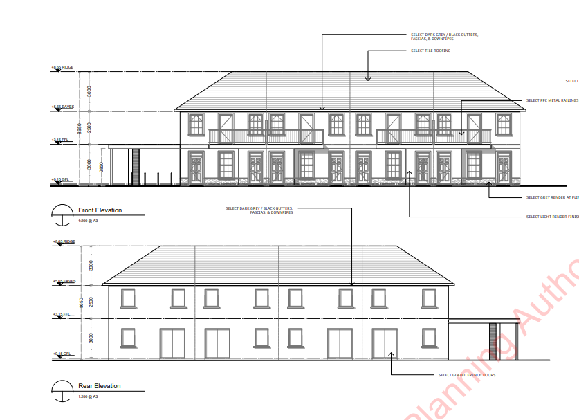
Pictured: the proposed duplex blocks submitted to Laois County Council by developers in 2024

Cubic Housing Ltd had previously sought permission for the construction of 20 houses and eight one-bedroom apartments. Laois County Council required more information and raised concerns over the density of the development, stating that the design was too compact. 

The developers submitted further documentation and revised plans for 26 residential units rather than the previous 28, which was then granted planning permission by the Council.

The original plans sought permission for three 2-storey four bedroom terraced houses, four more attached homes with three bedrooms each, three dormer style three bedroom terraced homes, ten two bedroom bungalows, and finally a two storey duplex block containing eight one bedroom apartments.

The application also sought permission to install a communal bin and bicycle store, a new vehicular entrance from New Row, parking spaces, boundary treatments, a landscaped amenity space, a local road and footpaths.

The proposed development includes a realignment of the existing pedestrian walkway that currently provides access from New Road to Fr Breen Park and associated community sports facilities. Written consent from the Trustees of Fr Breen Park, who hold authority over the affected right of way, was submitted.

The hardware and furniture business is currently still trading, with owners Liam and Fiona Dunne and recently announcing that they will be winding down over the next few months to enjoy their retirements.

Read Next: Work underway to get first Greenway in Laois off the ground

"After 43 years in business it is with mixed emotions that we wish to formally announce the sale of our property for development," the pair said.

"We do not have an exact closing date but we will begin to wind down the business in the meantime. We have loved serving our community but welcome the next phase of our life," they said.

The couple received dozens of comments and tributes on their retirement. Read more on the story here.

To continue reading this article,
please subscribe and support local journalism!


Subscribing will allow you access to all of our premium content and archived articles.

Subscribe

To continue reading this article for FREE,
please kindly register and/or log in.


Registration is absolutely 100% FREE and will help us personalise your experience on our sites. You can also sign up to our carefully curated newsletter(s) to keep up to date with your latest local news!

Register / Login

Buy the e-paper of the Donegal Democrat, Donegal People's Press, Donegal Post and Inish Times here for instant access to Donegal's premier news titles.

Keep up with the latest news from Donegal with our daily newsletter featuring the most important stories of the day delivered to your inbox every evening at 5pm.