Search

23 Oct 2025

Portarlington RFC begin development process

Portarlington RFC are heading down the development route

There has been no action on the Rugby fields for the past few months but that hasn't stopped Portarlington RFC from progressing with plans to improve their facilities.

A need to expand their clubhouse to meet their needs has been identified and with playing numbers on the rise, the time has come to put the wheels in motion.

The initial plan is a starting point and is up for discussion while the club is open to further ideas and suggestions.

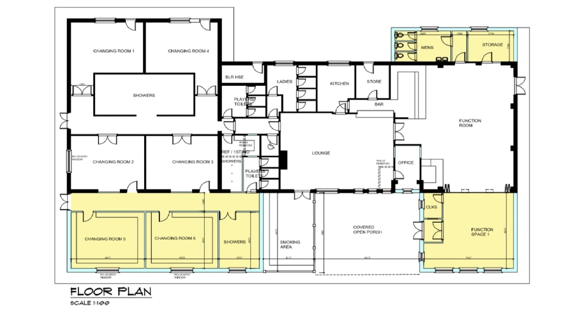
The initial drawing has a number of key areas with internal changes to the existing clubhouse along with some extra build on two elevations.

The initial plans for the Portarlington RFC clubhouse development

They have included two new dressing rooms with showers and toilets also set to be improved while match officials will have their own facilities also.

New storage space will also be added while their will be a new entrance reception which has been designed in a way to help with the heating of the building.

A change in internal layout will also give more office space for the ever growing admin side of the club.

The progressive club are welcoming feedback on the plans and inviting people to come and get involved in the project. 

 Send your feedback to info@portarlingtonrugby.com with the subject line 'Clubhouse Plans'. 

To continue reading this article,
please subscribe and support local journalism!


Subscribing will allow you access to all of our premium content and archived articles.

Subscribe

To continue reading this article for FREE,
please kindly register and/or log in.


Registration is absolutely 100% FREE and will help us personalise your experience on our sites. You can also sign up to our carefully curated newsletter(s) to keep up to date with your latest local news!

Register / Login

Buy the e-paper of the Donegal Democrat, Donegal People's Press, Donegal Post and Inish Times here for instant access to Donegal's premier news titles.

Keep up with the latest news from Donegal with our daily newsletter featuring the most important stories of the day delivered to your inbox every evening at 5pm.