Planning permission is to be sought to build more houses completing an estate on the outskirts of a large Laois town.
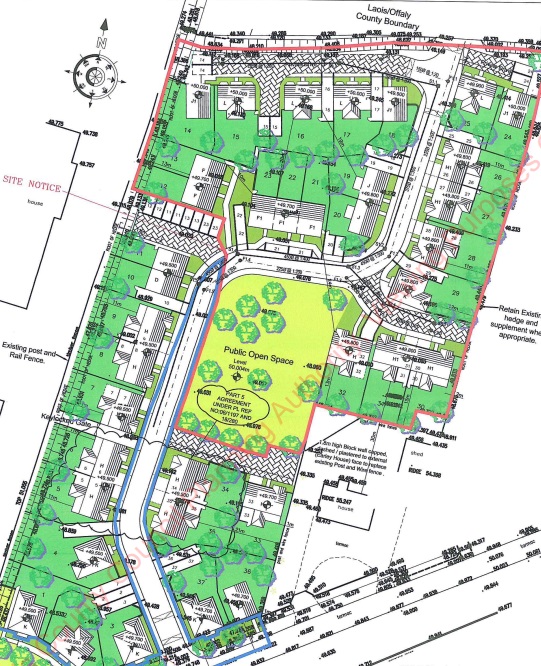
An application is to be lodged with Laois County Council to build 21 new houses in Derryounce, Portarlington on a site that right up to the Laois Offaly border.
Applicant Droughill Builders Ltd is requesting permission to build 10 detached two storey houses, 8 no semi-detached two storey houses, 3 no two storey terrace houses and all associated works.
Their plan includes an open public space - see map below in the estate which is off the Edenderry road near the Derryounce lake and woodland amenity.
Droughill say that this proposed development will allow for completion of a housing development that was previously granted permission which was to have a total of 37 houses.
The company was given an extension to their original planning permission in 2018. They had lodged a new application last July to complete the estate, but it was deemed incomplete. Droughill have now given notice that they will lodge another application.
See map of plan for the houses including a public open space outlined in red below.

WATCH New promo shows Ballyfin Demense off in all its glory in lovely Laois
The Ballyfin Demense luxury hotel has launched a new promotional video which shows of the house ground and Laois in all its glory. Watch below.
Subscribe or register today to discover more from DonegalLive.ie
Buy the e-paper of the Donegal Democrat, Donegal People's Press, Donegal Post and Inish Times here for instant access to Donegal's premier news titles.
Keep up with the latest news from Donegal with our daily newsletter featuring the most important stories of the day delivered to your inbox every evening at 5pm.